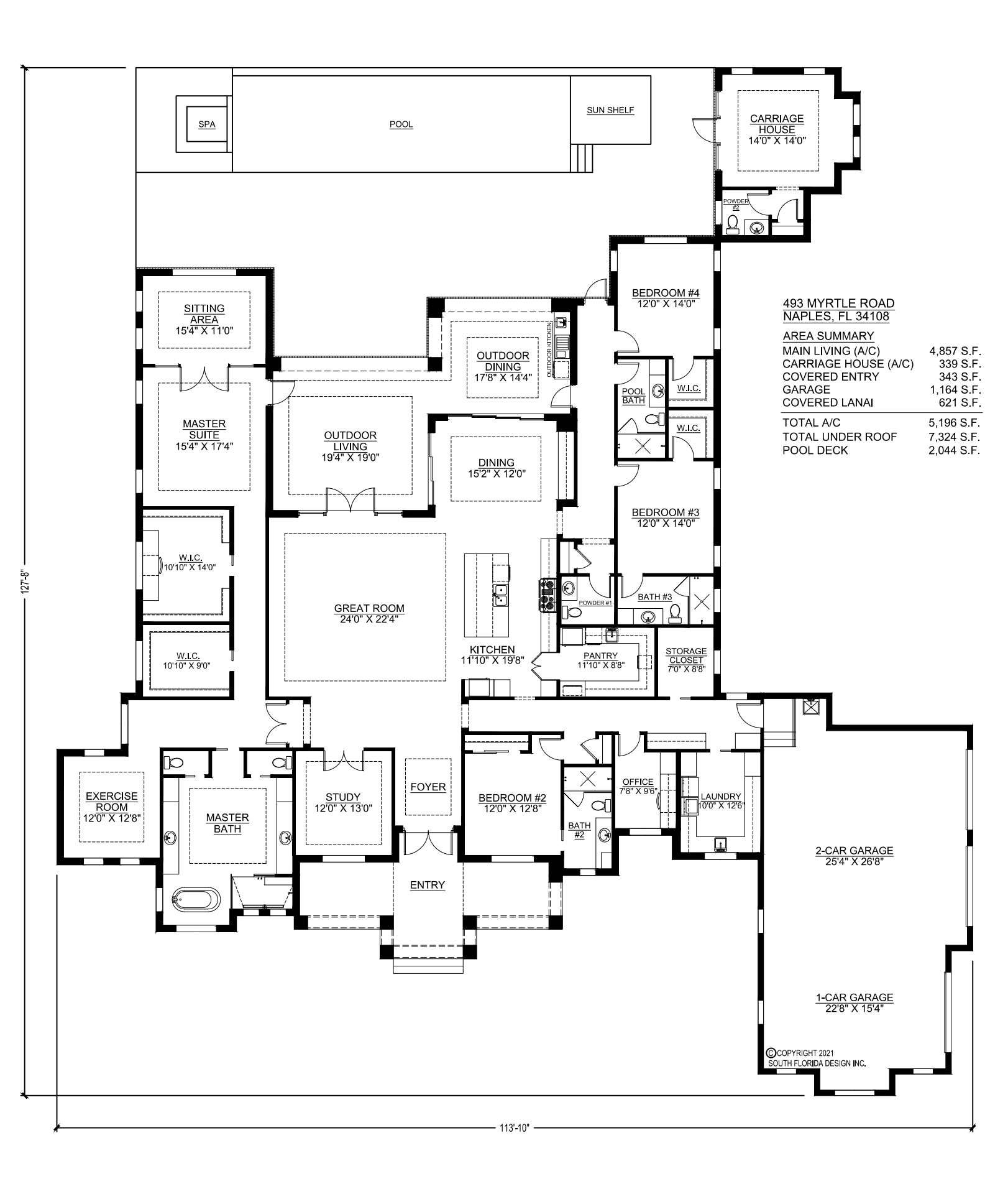
FLOOR PLAN

MAGNIFICENT HOME IN PINE RIDGE ESTATES! This exceptional new construction custom built residence is located on an oversized 1.5 acre fully landscaped private corner lot. This home is a showpiece of architectural design and craftsmanship built by Forge Custom Builders and professionally furnished by Nested Interiors. Featuring a grand foyer which opens to the great room, kitchen, and dining area, creating the functionality and style for comfortable living. The stunning kitchen was designed by Kitchens by Clay, and features Wolf and Sub-Zero appliances. A special design feature is a separate butler’s pantry equipped with all appliances and wine cooler. This home has 4 bedrooms, carriage house, 2 separate his and her offices, 6 baths, and fully equipped exercise room. The oversized master bedroom suite & sitting area includes a luxurious master bathroom, a dream of every homeowner. Her closet is a unique design that includes a dressing area and built-in desk. The home opens through French and sliding doors to a breathtaking outdoor living area with a 43’ lap pool and spa, outdoor kitchen and separate sitting areas, which make it the perfect tropical paradise for entertaining. Other features include oak flooring throughout, whole house generator, 1000-Gal propane tank, Lutron lighting system, marble tile on all outdoor areas, and much more. A stunning opportunity you don’t want to miss!
Offered Price: $7,350,000

Stacy Grimes, Owner: NCIDQ, ASID
Stacy earned a Bachelor of Science degree in Interior Design from Endicott College in Beverly, MA and has been in the design field for more than 12 years. She is NCIDQ certified and a member of ASID. As a Massachusetts native, Stacy kicked off her career at the Boston based design firm, Eleven Interiors, where she mastered her skills in new construction, renovation, and decoration projects focusing on high-end residential interior design. She began as a design assistant to the principal of the firm, eventually becoming a project manager and finally, lead designer of the firm. Stacy’s projects from this period were featured in many publications.
Fast forward more than 10 years and Stacy and her husband moved to Naples, FL to be closer to her family. She decided to launch her own design firm and Nested Interiors was born. Combining her talent for interior design, her attention to detail and her project management skills Stacy creates beautiful and functional spaces for her clients to enjoy.
Steve Prato - Partner
Jeff Perkins - Partner
With a passion for quality and attention to every detail, our goal is to provide you with inspired design, stunning architectural details, and innovative features in luxury living, ultimate practicality, and convenience of ownership. From design to delivery we work directly with our homeowners and buyers to ensure a positive, exciting, and rewarding building or remodeling experience. We offer flexibility wherever possible and encourage our clients to customize, ensuring each home reflects the buyer’s choice and personal taste.
STEVE- With 23 years of experience, Steve spent his early years working construction alongside is father and later taking over the family’s construction business throughout New York and New Jersey. Steve’s extended family has a long history in commercial, residential and homebuilding both in Long Island and New Jersey. In 2013, Steve joined his family in Naples and brought his knowledge and experience in all aspects of the custom design-build process to Stock Development as Project Manager – Custom Homes Division. Working closely with clients and business partners, Steve manages construction and operations, maintaining budgets, schedules and deadlines for each of his projects and homes. In addition to Forge Construction LLC, Steve owns Simply Perfect Home Watch, a great opportunity for Steve and his father to work together again. When not on site or meeting with customers, Steve enjoys boating and fishing with his wife Katherine and daughter Ava.
JEFF- With 34 years of experience in the industry, Jeff began his career in foundations and concrete block masonry in Indio, California. After serving in the US Navy, Jeff returned to Southern California to work as a Foreman then General Field Superintendent in the framing industry and helped put together a division for a prominent Orange County framing company in San Diego. Jeff has worked in residential, commercial and custom construction in Oahu & Molokai Hawaii, Southern California, Tampa and now Naples, Florida. Jeff joined Davidson Communities in San Diego as a Superintendent and later opened his own construction company providing custom home building and remodeling in San Diego and Coronado California. Moving to Florida in 2014, he completed a commercial hotel remodel in Tampa before settling in Naples. Prior to starting Forge Construction LLC, Jeff was superintendent first for Ashton Woods at Fiddler’s Creek and then with Stock Development Signature & Custom Homes. Jeff holds both a California General Contractor and Florida Certified General Contractor license. Jeff manages operations, construction and remodeling, including budgets, schedules, and deadlines for his projects. When not working, Jeff can be found biking, at the beach, discovering new restaurants and exploring everything Florida.
* Custom House Plans
* Ready-To-Purchase House Plans
* House Plan Design Modifications
* Professional Rendering Services
South Florida Design | HousePlans is based in Bonita Springs, Florida, but services all of South Florida. Greg Weber – Owner | Corporate Executive | Residential Designer – has been designing award-winning house plans for 30+ years. At South Florida Design, we offer our clients a choice…a custom “one-of-a-kind” design or a catalog of “ready-to-purchase” house plans. Our designs can be found locally as well as internationally. With a focus on style, attention to detail and each client’s unique needs, we have a passion for replicating those needs into a house plan of the highest quality.
Greg Courniotes - Building a Trusted Relationship
I was born and raised in Massachusetts and have been a full-time resident of Florida for 15 years. As a trusted real estate professional for the last 14 years in Southwest Florida, I have in-depth local knowledge of this area and a proven track record with both buying and selling homes. I have been a partner and owner in business for over 35 years and when assisting with your real estate transaction I will leverage my diversified experience in sales, marketing, and finance. In addition, having many years of building and construction experience will allow me to use a variety of skills to immediately add value to your real estate purchase or property listing.
As a highly motivated self-starter, I clearly know what value to bring to a real estate transaction. Buying a property for a permanent residence or vacation property is one of the most important transactions you will encounter. If you are listing a property, the process is centered on a thorough and comprehensive sales and marketing strategy using the most up-to-date technology and tools to ensure a successful result. If you are purchasing a property, my negotiation skills, persistence, and property knowledge will help ensure a successful and satisfying experience.
Throughout my career, I have always been deeply motivated to provide my clients with the most comprehensive and honest support possible. My passion and dedication have enabled me to build a lasting business and personal friendship with virtually all of my clients. The large referral base I have built over many years is the best testament to anyone’s success. My support to clients transcends the actual purchase or sale and continues well after the transaction for many years.
Whether you are new to the market or an experienced investor, I will provide you with personal attention, local knowledge, and marketing resources, that will absolutely exceed your expectations!

The Pine Ridge Estates area is a unique non-gated community, located in North Naples, Florida. Pine Ridge is bordered by 4 main roads: US41 (aka Tamiami Trail) to the West, Goodlette-Frank Road to the East, Vanderbilt Beach Road to the North, and Pine Ridge Road to the South. This highly sought out location is the only neighborhood that has large exclusive estate lots over 1+ Acres and within minutes to the beach. Nestled within this peaceful community are mature trees, smaller lakes, and many private secluded lots. The many winding streets are quiet and peaceful with large trees and landscaping creating a clearly residential and private feeling. It is adjacent to Mercato which offers fine dining and casual restaurants, nightlife, many retail shops and boutiques, and a state-of-the-art movie theater. Nearby are the Waterside Shops, Naples Artis Theater, the Venetian Village area of shops and restaurants, and many fine Hotels. The famous Fifth Avenue area is a short drive away and along the streets are many exclusive shops and restaurants. Located in one of the best School Districts that includes distinguished private schools, this location is an excellent choice for families searching for homes with land to enjoy while being so near to the beach and water activities. It provides a leisurely lifestyle for families, retirees, and vacationers to enjoy for many years to come. Undoubtedly a prime location for memories to be made!